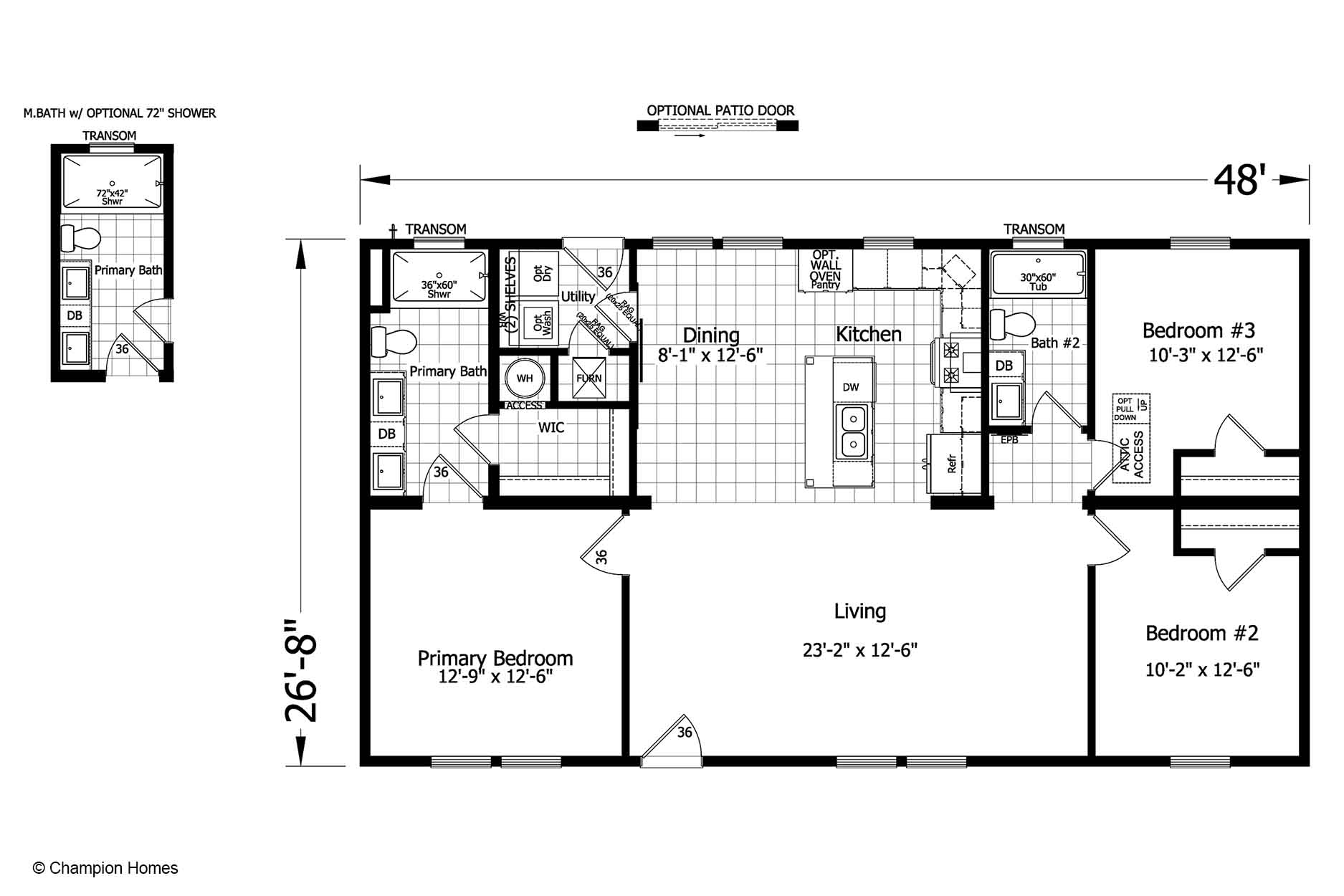
Champion Homes Suffolk 2848-03 Modular Ranch Floor Plan

Suffolk 2848-03

1280 Square Feet

3 Beds2 Baths

Home Features

Home Office
Kitchen Island
Walk-in Pantry
Family Area

Virtual Tour (if available)

Interested in this floor plan?
(336) 610-5150
1936 US Hwy 64 East, Asheboro, NC
Name(Required)
I own land or have land for my new home:(Required)
This helps us provide additional suggestions.
Scroll to Top