A modern black modular home with white trim, a steep roof, and multiple windows, set on a sunny lawn.

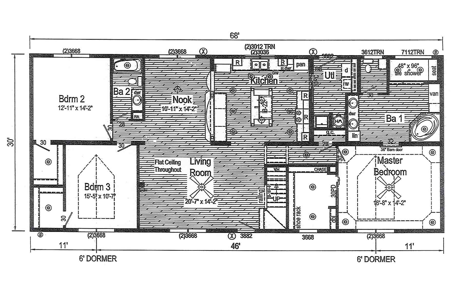
Southern Belle

2040 Square Feet

3 Beds2 Baths

Home Features

Virtual Tour (if available)

Interested in this floor plan?
(336) 610-5150
1936 US Hwy 64 East, Asheboro, NC
Name(Required)
I own land or have land for my new home:(Required)
This helps us provide additional suggestions.
Scroll to Top